LECH NIERUCHOMOŚCI 01-161 WARSZAWA ULICA OBOZOWA 20 LOKAL 231
Kursy walut NBP: USD 3,98 | EUR 4,32 | CHF 4,53 |
Strona główna | Mapa serwisu | Zgłoś ofertę | Polityka plików cookies| Kontakt
Wyszukiwarka
Numer oferty
Miejscowość lub dzielnica
Ulica
Cena
Powierzchnia
Liczba pokoi
 
Oferty specjalne
zgloś ofertę
kontakt
Szczegóły oferty
Rodzaj oferty
mieszkanie ( sprzedaż )
Numer
51285/4508/OMS
Miasto
WARSZAWA, PRAGA-POŁUDNIE
Ulica
Witolińska
Cena
759 000 PLN kalkulator
Cena za mkw
12 671,12 PLN mkw
Powierzchnia
59.90 m2
Liczba pokoi
3
Piętro
1
Liczba pięter
15
Stan
do remontu
Rok budowy
1979
Balkon
TAK
Winda
TAK
Piwnica
TAK
Opis
Mieszkanie 3 pokojowe usytuowane na 1 piętrze w wysokim bloku zlokalizowane na warszawskiej Pradze Południe.

Dla mieszkańców są do dyspozycji dwie windy (jedna bardzo duża, towarowa). Budynek posiada zewnętrzny podjazd.
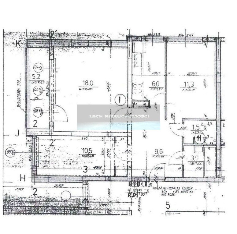
Na powierzchnię mieszkania składa się
- 3 pokoje (18m2 11,3m2, 10,5m2),
- oddzielna kuchnia (6m2),
- łazienka (3m2),
- oddzielne WC (1,5m2)
- przedpokój (9,6m2).
Dodatkowo balkon- loggia (5,2m) oraz kilkanaście m2 dodatkowej prywatnej przestrzeni korytarzowej przy wejściu do mieszkania (rowery, wózki etc.). Do lokalu przynależy też ok. 2m2 piwnicy.

Mieszkanie spółdzielczo-własnościowe bez możliwości założenia KW - możliwość zakupu wyłącznie za gotówkę.
Parking na ulicy, w bliskiej odległości do budynku jest kilkadziesiąt miejsc parkingowych i praktycznie nie ma problemu aby zaparkować.

Dogodna lokalizacja- świetnie skomunikowane miejsce.
Wokół pełna infrastruktura miejska.




Sobota i niedziela dyżur w biurze w godzinach 830 - 2100. W razie jakichkolwiek pytań proszę dzwonić 795 327 829, wysłać SMS lub wysłać zapytanie na adres e-mail lech@lechnieruchomosci.pl, oddzwonimy.
Treść ogłoszenia nie stanowi oferty w rozumieniu Kodeksu Cywilnego
Jesteś zainteresowany?
Agent prowadzący
Renata Snarska
Nr licencji pośrednika odpowiedzialnego zawodowo
5860
Telefon
795-327-829
E-mail
lech@lechnieruchomosci.pl

LECH NIERUCHOMOŚCI
Obozowa 20 lokal 231
01-161 Warszawa
tel.: 795 327 829
email: lech@lechnieruchomosci.pl
fax: 22 258-12-31
Wyślij zapytanie
Imię i Nazwisko 
Telefon 
E-mail 
Treść zapytania 

Wyrażam zgodę na przetwarzanie moich danych osobowych przez firmę LECH NIERUCHOMOŚCI dla celów związanych z działalnością pośrednictwa w obrocie nieruchomościami, jednocześnie potwierdzam, iż zostałem poinformowany o tym, iż będę posiadać dostęp do treści swoich danych do ich edycji lub usunięcia.
Wyślij ofertę e-mailem
 

© 2026 LECH NIERUCHOMOŚCI. Wszystkie prawa zastrzeżone.