LECH NIERUCHOMOŚCI 01-161 WARSZAWA ULICA OBOZOWA 20 LOKAL 231
Kursy walut NBP: USD 3,98 | EUR 4,32 | CHF 4,53 |
Strona główna | Mapa serwisu | Zgłoś ofertę | Polityka plików cookies| Kontakt
Wyszukiwarka
Numer oferty
Miejscowość lub dzielnica
Ulica
Cena
Powierzchnia
Liczba pokoi
 
Oferty specjalne
zgloś ofertę
kontakt
Szczegóły oferty
Rodzaj oferty
mieszkanie ( sprzedaż )
Numer
47470/4508/OMS
Miasto
WARSZAWA, URSUS
Ulica
Ryżowa
Cena
980 000 PLN kalkulator
Cena za mkw
14 161,85 PLN mkw
Powierzchnia
69.20 m2
Liczba pokoi
3
Piętro
2
Liczba pięter
7
Rok budowy
2009
Balkon
TAK
Winda
TAK
Komórka
TAK
Opis
3 pokojowe klimatyzowane mieszkanie w spokojnej okolicy na atrakcyjnym osiedlu dla rodzin - Skorosze IX w Ursusie. Osiedle wybudowane przez cenionego dewelopera EBEJOT.
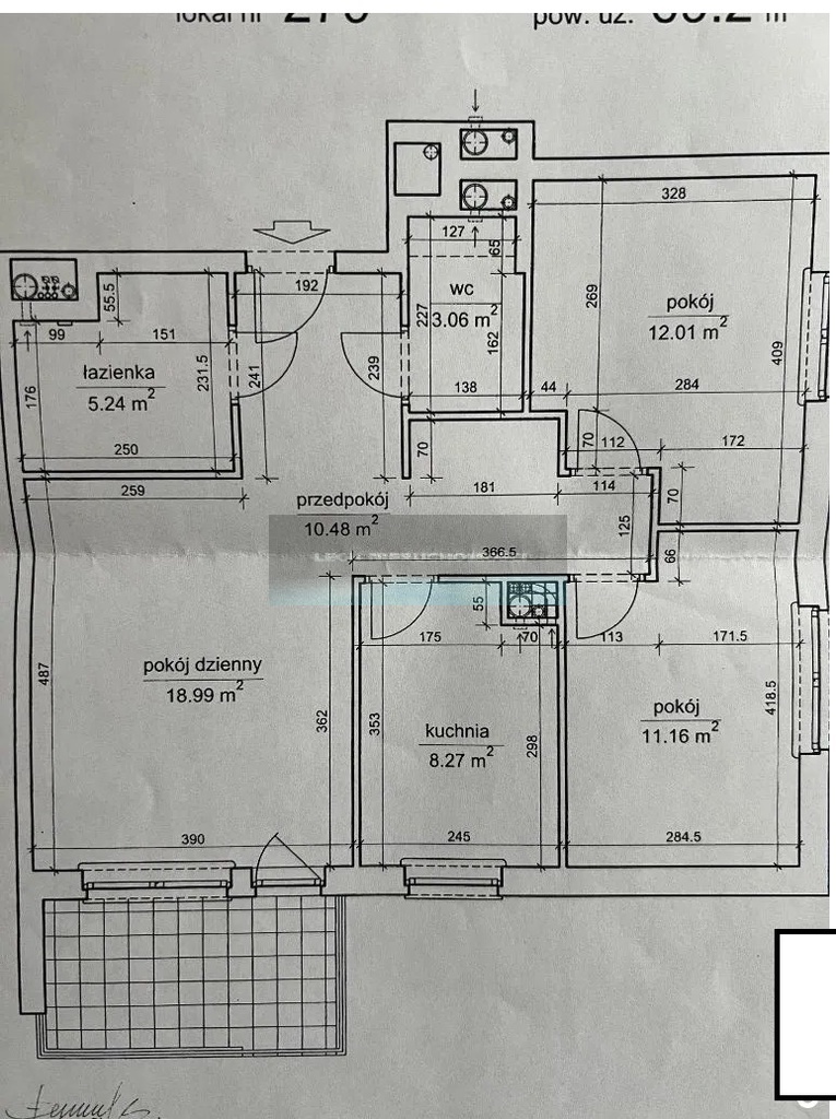
Mieszkanie z 2009 roku położone jest na 2 piętrze w 7 piętrowym bloku przy ulicy Ryżowej. Mieszkanie o powierzchni 69m2 posiada funkcjonalny rozkład, dzięki czemu daje poczucie komfortu i przestrzeni. W skład mieszkania wchodzą
* Pokój dzienny - 19m2
* Kuchnia - 8,5m2
* Sypialnia 1 z dużą szafą w zabudowie - 11m2
* Sypialnia 2 z dużą szafą w zabudowie - 12m2
* Łazienka 1 - 5m2
* Łazienka 2 - 3m2
* Przedpokój z dużą szafą w zabudowie - 10.5m2
* Duży balkon

W cenie mieszkania znajdują się wszelkie zabudowy oraz sprzęty takie jak piekarnik, lodówka, płyta indukcyjna, pralka, klimatyzacja (niektóre z nich jeszcze na gwarancji). Istnieje również możliwość pozostawienia innych ruchomości - do omówienia z osobami zainteresowanymi.

Do mieszkania przynależą także
* Komórka lokatorska (dodatkowo płatna 20 000zł)
* Miejsce postojowe w garażu podziemnym(dodatkowo płatne 50 000zł)



Sobota i niedziela dyżur w biurze w godzinach 830 - 2100. W razie jakichkolwiek pytań proszę dzwonić 795 327 829, wysłać SMS lub wysłać zapytanie na adres e-mail lech@lechnieruchomosci.pl, oddzwonimy.
Treść ogłoszenia nie stanowi oferty w rozumieniu Kodeksu Cywilnego
Jesteś zainteresowany?
Agent prowadzący
Renata Snarska
Nr licencji pośrednika odpowiedzialnego zawodowo
5860
Telefon
795-327-829
E-mail
lech@lechnieruchomosci.pl

LECH NIERUCHOMOŚCI
Obozowa 20 lokal 231
01-161 Warszawa
tel.: 795 327 829
email: lech@lechnieruchomosci.pl
fax: 22 258-12-31
Wyślij zapytanie
Imię i Nazwisko 
Telefon 
E-mail 
Treść zapytania 

Wyrażam zgodę na przetwarzanie moich danych osobowych przez firmę LECH NIERUCHOMOŚCI dla celów związanych z działalnością pośrednictwa w obrocie nieruchomościami, jednocześnie potwierdzam, iż zostałem poinformowany o tym, iż będę posiadać dostęp do treści swoich danych do ich edycji lub usunięcia.
Wyślij ofertę e-mailem
 

© 2026 LECH NIERUCHOMOŚCI. Wszystkie prawa zastrzeżone.